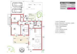
Top 1 - Bungalow
- Erdgeschoss
- Wohnfläche: 120m²
- Grundstück: 487m²
- Terrasse: 21m²
- Schlafzimmer: 3
- Kaufpreis: € 358.500,-
Ein Bungalow wie im Bilderbuch. Kompakt, elegant, zweckmäßig und mit viel Charme präsentiert sich dieses Gebäude. Weg vom Rest der Welt, ruhesuchend und findend, abgekapselt vom hektischem Treiben des Alltags - energieschöpfend.
Mit 120m² Wohnfläche (der Grundriss wird nach Ihren Wünschen umgesetzt) bietet der Bungalow ausreichend Platz für 3 Zimmer, Küche, Bad und WC. Die im Preis enthaltene Erdwärmeheizung sowie die energetisch hochwertige Bauweise beweisen Nachhaltigkeit bei den Energiekosten.
Die reine S/W-Ausrichtung sowie die ruhige Lage ergänzen den hohen Wohnkomfort dieses Eigenheimes.




