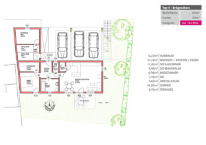
Top 4 - Wohnung
- Erdgeschoss
- Wohnfläche: 65m²
- Garten: 93m²
- Terrasse: 9m²
- Schlafzimmer: 1
- Kaufpreis: € 185.900,-
Für Gartenliebhaber die ideale Wohnung. Mit 93m² uneinsichtigem Garten viel Platz um sich das „Sommerwohnzimmer“ entsprechend zu gestalten. Ob Kräutergarten, Steingarten oder schlicht als Rasenfläche, hier bieten sich alle Möglichkeiten um sich im Freiem auszutoben. Mit 65m² und 2-Zimmer-Küche ist diese Wohnung das Platzwunder dieser Planung.
Die Wohnung ist desweiteren behindertengerecht ausgeführt und bietet die Option auf einen kostengünstig Ausbau zur barrierefreien Wohnung.




