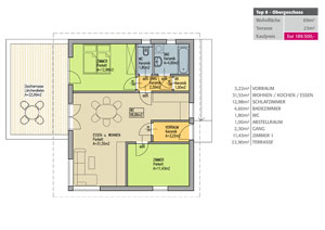
Top 8 - Wohnung
- Obergeschoss
- Wohnfläche: 69m²
- Terrasse: 23m²
- Schlafzimmer: 2
- Kaufpreis: € 189.500,-
Diese Eigentumswohnung besticht in erster Linie durch die sehr großzügige Dachterrasse mit Ausrichtung nach Süd/West. Sonnenstunden bis in den späten Abend und ein gemütlicher Tagesausklang bei Sonnenschein sind somit gesichert. Der rechteckige Grundriss gibt sehr viel Freiraum zur Gestaltung der räumlichen Aufteilung.
Sehr gerne erarbeiten wir mit Ihnen gemeinsam eine auf Ihre Bedürfnisse abgestimmte Raumaufteilung.




