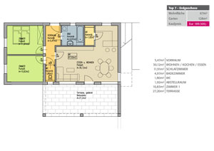
Top 7 - Wohnung
- Erdgeschoss
- Wohnfläche: 67m²
- Garten: 128m²
- Terrasse: 27m²
- Schlafzimmer: 2
- Kaufpreis: € 189.500,-
Der „Villenstil“ des Gebäudes läßt eigentlich nicht den Schluß auf zwei Eigentumswohnungen zu. Dennoch verbergen sich zwei Wohneinheiten hinter der „noblen“ Fassade dieses Gemäuers.
Dieser im Erdgeschoß gelegene Wohntraum erfüllt nicht nur die Anforderungen normalen Wohnens, sondern vielmehr dem schönem Lebens. Werden einem die eigenen vier Wände zu eng und droht einem die Decke auf den Kopf zu fallen weicht man einfach auf die überdachte und uneinsichtige Terrasse aus, oder erfreut sich am nicht zu großen und pflegeleichten Garten. Ein wenig Eigengestaltung und schon hat man südländisches Flair vor der Terrassentür.




