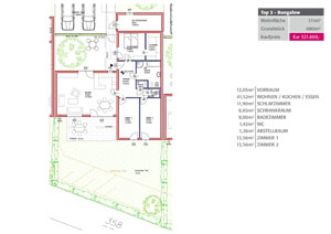
Top 2 - Bungalow
- Erdgeschoss
- Wohnfläche: 111m²
- Grundstück: 480m²
- Terrasse: 19m²
- Schlafzimmer: 3
- Kaufpreis: € 321.600,-
Wohnen auf einer Ebene und höchstem Niveau . . .
Ob mit Freunden auf ein gemütliches Zusammensitzen, oder einfach nur als Rückzugsmöglichkeit aus dem hektischen Treiben des Alltags. Der Patio, den Sie vom Wohnzimmer aus erreichen, ist Ihr Ort der Entspannung. Zum Sonnenbaden geht es dann ebenso vom Wohnzimmer hinaus auf die großzügige Terrasse und in den uneinsehbaren Garten. Eine einmalige Planung mit viel Freiraum und wenig Bearbeitungsaufwand.
Selbstverständlich gibt es auch diesen Bungalow in barrierefreier Ausführung.




